Bâti-support Giseasy - Geberit

à partir de 284.54€ TTC

Pour passer commande ou connaitre la disponibilité de nos produits, merci de sélectionner une Agence CHAURACI

Choisir une Agence

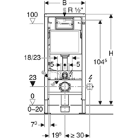
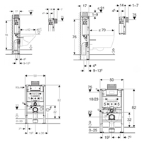
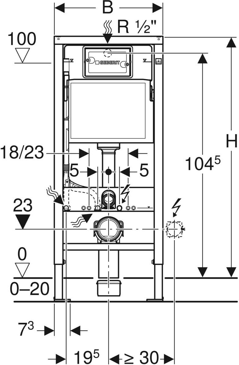
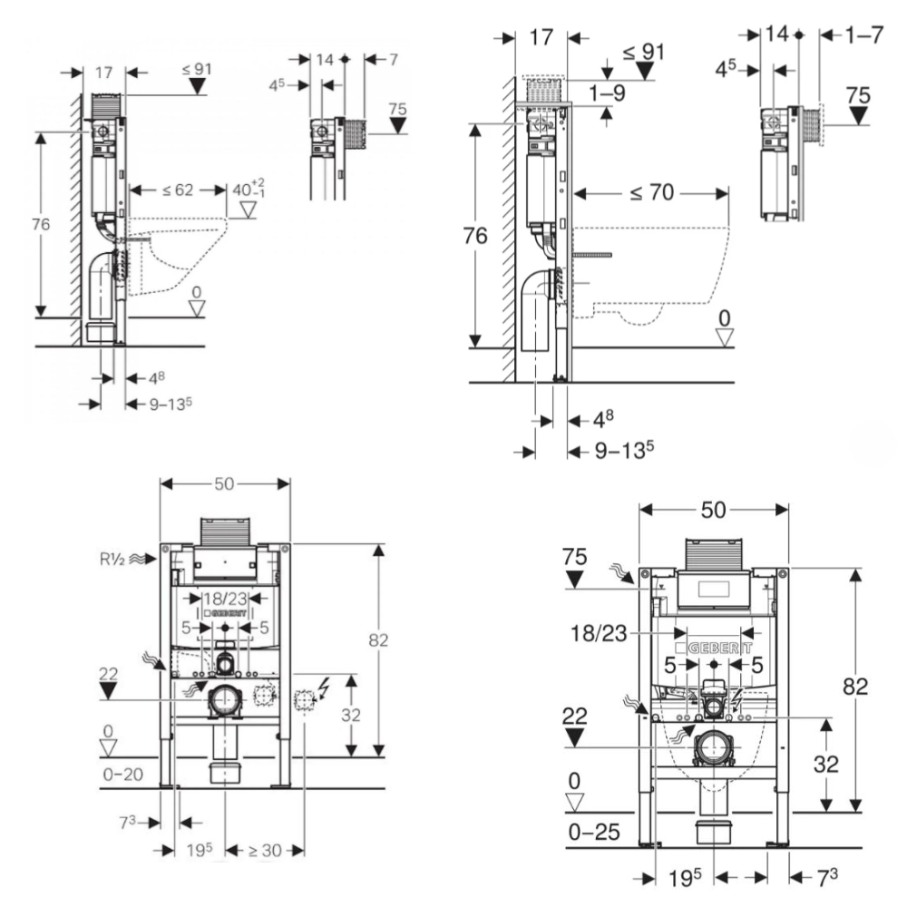
Description